Maison à étages | MLS: 19785398
**Maison semi-détachée en bordure de la rivière des Prairies!** Découvrez un site exceptionnel offrant un cadre de vie unique. Cette propriété propose un immense potentiel pour ceux qui souhaitent la personnaliser selon leurs besoins. Emplacement stratégique : à deux pas de l'autoroute 25, avec un accès rapide vers Montréal et les services essentiels. Un environnement paisible, des vues magnifiques sur l'eau et une propriété prête à accueillir votre vision. Une opportunité rare!
Points positifs du secteur -- Rivière-des-Prairies / RDP-PAT
Cadre naturel et accès à l'eau
Le secteur est ceinturé par la rivière des Prairies, offrant de beaux points de vue et des berges agréables.
https://montreal.ca/apropos/riviere-des-prairies-pointe-aux- trembles?utm_source=chatgpt.com
Il y a de nombreux parcs et espaces verts : plus de 135 parcs et espaces verts selon l'arrondissement. Montréal
Le Parc-nature de la Pointe-aux-Prairies (261 ha) est tout près, idéal pour les promenades, le vélo, la découverte de la faune et de la flore. https://en.wikipedia.org/wiki/Pointe-aux-Prairies_Nature_Par k?utm_source=chatgpt.com
Le Parc-nature du Ruisseau-De Montigny propose 3,3 km de sentiers, des petits îlots et une belle biodiversité. Montréal https://montreal.ca/en/places/parc-nature-du-ruisseau-de-mon tigny?utm_source=chatgpt.com
Activités nautiques
Croisières patrimoniales sur la rivière et le fleuve, kayak, initiation à la pêche et plus encore.
Navettes fluviales saisonnières dans l'arrondissement, pour se déplacer de façon plaisante sur l'eau.
https://montreal.ca/articles/croisieres-et-activites-nautiqu es-rdp-pat-15003?utm_source=chatgpt.com
Infrastructures et vie de quartier
Centre aquatique à RDP avec piscines, glissades et tremplins, parfait pour la famille. Montréal
Centre communautaire dynamique, avec des salles multifonctions, activités culturelles, sportives, etc
https://montreal.ca/lieux/centre-communautaire-de-riviere-de s-prairies?utm_source=chatgpt.com
Réseau cyclable important : pistes sur le boulevard Gouin, interconnexions avec les parcs. Montréal
Patrimoine historique : bâtiments anciens, vieux moulin de Pointe-aux-Trembles, maisons patrimoniales.
Communauté accueillante avec un bon mélange social (résidentiel, familial) et un coût de propriété parfois plus abordable que d'autres secteurs de Montréal.
Proximité des services
Nombre d'équipements : arénas, piscines, bibliothèques, centres communautaires selon l'arrondissement.
Marché public de Rivière-des-Prairies (saisonnier) : produits locaux, ambiance de quartier.
Inclus : four encastré, lave-vaisselle, réfrigérateur, , laveuse-secheuse , plaque de cuisson
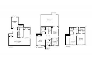
| Chambre | Dimensions | Niveau | Revêtement |
|---|---|---|---|
| Hall d'entrée | 4.1 x 7.2 P | Rez-de-chaussée | Céramique |
| Hall d'entrée | 4.1 x 7.2 P | Rez-de-chaussée | Céramique |
| Salon | 11.8 x 14.0 P | Rez-de-chaussée | Bois |
| Salon | 11.8 x 14.0 P | Rez-de-chaussée | Bois |
| Cuisine | 8.7 x 9.3 P | Rez-de-chaussée | Couvre-sol souple |
| Cuisine | 8.7 x 9.3 P | Rez-de-chaussée | Couvre-sol souple |
| Salle à manger | 8.7 x 13.4 P | Rez-de-chaussée | Couvre-sol souple |
| Salle à manger | 8.7 x 13.4 P | Rez-de-chaussée | Couvre-sol souple |
| Salle d'eau | 5.11 x 6.2 P | Rez-de-chaussée | Céramique |
| Salle d'eau | 5.11 x 6.2 P | Rez-de-chaussée | Céramique |
| Mezzanine | 8.10 x 10.0 P | 2ième étage | Bois |
| Mezzanine | 8.10 x 10.0 P | 2ième étage | Bois |
| Chambre à coucher principale | 10.6 x 17.2 P | 2ième étage | Bois |
| Chambre à coucher principale | 10.6 x 17.2 P | 2ième étage | Bois |
| Salle de bains | 8.7 x 4.11 P | 2ième étage | Céramique |
| Salle de bains | 8.7 x 4.11 P | 2ième étage | Céramique |
| Salle de lavage | 5.11 x 8.4 P | 2ième étage | Couvre-sol souple |
| Salle de lavage | 5.11 x 8.4 P | 2ième étage | Couvre-sol souple |
| pourrait etre CC | 8.2 x 19.2 P | Sous-sol | Plancher flottant |
| pourrait etre CC | 8.2 x 19.2 P | Sous-sol | Plancher flottant |
| Salle familiale | 17.11 x 22.5 P | Sous-sol | Plancher flottant |
| Salle familiale | 17.11 x 22.5 P | Sous-sol | Plancher flottant |
| Rangement | 3.8 x 9.9 P | Sous-sol | Plancher flottant |
| Rangement | 3.8 x 9.9 P | Sous-sol | Plancher flottant |
| Rangement | 5.6 x 3.6 P | Sous-sol | Plancher flottant |
| Rangement | 5.6 x 3.6 P | Sous-sol | Plancher flottant |
| Sous-sol | 6 pieds et plus, Partiellement aménagé |
|---|---|
| Particularités | Accès à l'eau, Bordé par l'eau, Navigable |
| Allée | Asphalte |
| Proximité | Autoroute/Voie rapide, Cegep, École secondaire, Garderie/CPE, Hôpital, Parc-espace vert, Piste cyclable, Transport en commun |
| Toiture | Bardeaux d'asphalte |
| Fondation | Béton coulé |
| Énergie pour le chauffage | Électricité |
| Stationnement | Extérieur |
| Foyers-poêles | Foyer au bois |
| Système d'égouts | Municipal |
| Approvisionnement en eau | Municipalité |
| Aménagement du terrain | Patio |
| Mode de chauffage | Plinthes électriques |
| Zonage | Résidentiel |
Cette inscription est présentée en collaboration avec EXP AGENCE IMMOBILIÈRE